业主小桥儿时与大自然长时间的亲密相处,让她感受到了植物们无尽的生命力,每次触碰土壤、抚摸枝叶、拥抱树干的时候。她都觉得其实自己与它们是一体共生的,直到现在,她依然保持着对花花草草的热爱。
买了房子,拿到钥匙后,小桥的脑海里就已经有了家的模样,她要把“花园”搬回家。



于是,面积只有60㎡的小家,被开辟出了20㎡的室内花园,翻新以后,看过的人都感叹,日常生活原来可以打造的如此情趣盎然,与自然的拥抱、享受最舒适的生活方式。
原始户型图

这是一个户型方正的普通小两居,拆掉这一小面墙后,形成的斜线,加长了路径与视觉面积,整个空间看上去开阔又别致。
改造前后路径分析图

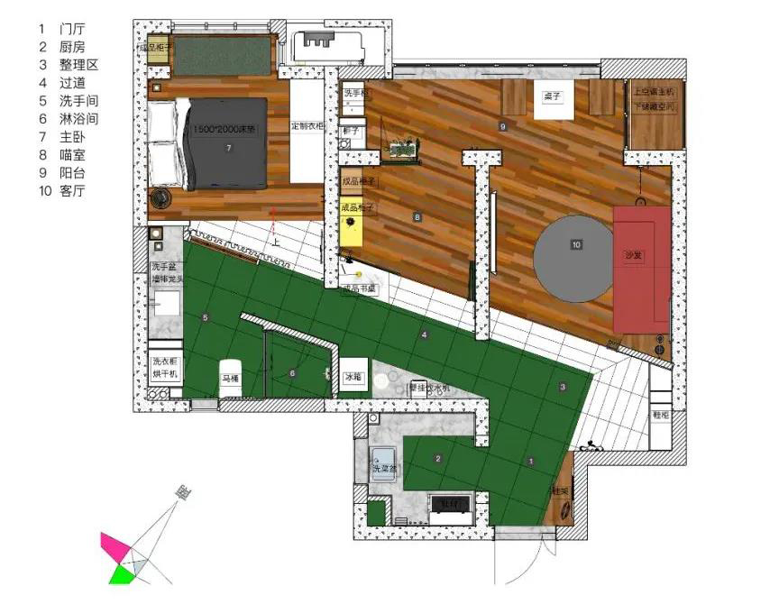
改造后平面布局图

玄关的面积很小,布置非常简单
采用异形挂墙鞋柜,满足收纳近期穿换的鞋子和随手置物的需求
空出的上方挂装饰画
空出的下部空间可以摆放当天穿换的鞋子

进门往左走就是厨房

U型的厨柜布局,让操作台面、地面的空间更加宽敞

接下来来到连接客厅和玄关的斜线过道
两端做了通高的镜墙,
通过镜面让视觉无限延伸,
狭窄的过道也变得更加宽阔、通透

镜子背后是大大的鞋柜,旁边可以增加挂衣服的挂钩

过道左手边是与厨房共用的墙体
定做到顶的柜子不但能多收纳不少物品,还拥有了西厨的功能
平日里在这儿煮个咖啡、做个简餐都很方便

冰箱也安置在这里

入户门正对面是客厅
从入户处开始的绿色墙面,一直延伸到客厅的电视墙,整体感超强

全屋采用无主灯的设计,视觉上更加宽阔利落
暗红色的丝绒沙发,更增添了整体空间的暖意与温柔之感
电视墙下方也没有摆放传统电视柜
让60㎡的小家很宽敞

客厅紧邻阳台,一张质朴木餐桌和两把中古餐椅
在茂盛的花草掩映下,变成了一个精致的花园餐厅

餐桌左侧,是利用原空调主机的位置做的储藏间
将主机置于上方,下面空出的部分可以当杂物间
储藏间的长虹玻璃推拉门既可以遮住各种杂物
还能增添这个空间的精致感

客厅隔壁就是是猫房和卧室、卫生间
还隔出一小块作为女主人的办公区
将空间利用到极致


猫房内部没有摆放太多物品,猫咪有足够的空间玩耍
从猫放出来就到了生活阳台
一组白色壁柜,除了各种洗衣用品,一个小型水池也内嵌其中
不但储物功能强大,还方便日常洗晒


过道尽头就是卫生间

靠墙的一面除了放置洗衣机烘干机
剩下的都做了2米长的洗手台
还安装了整面墙的镜子
视觉上扩大了卫生间空间


卫生间隔壁是卧室

卧室内部面积不大,却依然布置成一个郁郁葱葱的小花园
床头蓝色基调的碎花壁纸搭配墨绿色墙漆,
上窗户下的花花草草,带来了清新自然的睡眠氛围


越长大越孤单,但请不要忘记最初的纯真!
房子里,有猫、有花、有草,有他,才够美好!
旧房翻新就找家先生,让家更美好!

Copyright © 2015-2020 福建家先生互联网服务有限公司 版权所有 闽ICP备16015484号-1