这是一套朝北,户型方正的房子,视野采光都还不错,室内装修都没什么坏损。

但是四面大白墙看起来略显寡淡,家具也比较老旧过时,不符合时下年轻人的审美,还有一个致命缺点就是全屋都没有做储物空间,利用率很低,想住还是能住,但总没有那么舒适。
业主是一对年轻夫妻,对生活品质有一定要求,再三思量,还是决定找旧房翻新连锁品牌家先生对这个房子改造一番。
翻新方案
● 业主喜欢偏复古的北欧风,喜欢中古家具,整体颜色倾向于莫兰迪色和复古色。
● 通过对书房、厨房、卫生间的墙体改造,为缺乏玄关的原户型辟出了玄关区。
● 保留两室一厅格局,次卧在休息功能的前提下,兼具书房功能。
● 内推次卧墙体改变门洞位置,嵌入冰箱以及换鞋柜。
● 改变卫生间门洞方向,增加出门厅柜空间,并且做了干湿分区。
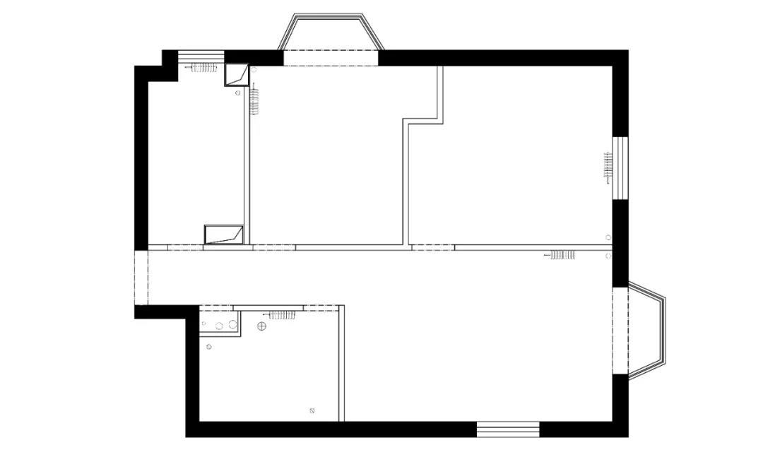
原始户型图

优化后平面布局图

客餐厅

新增玄关区域,进门右手边的金属边穿衣镜很摩登,白色顶天立地柜解决鞋子收纳问题;左手边设置了卡座换鞋凳,上方可悬挂衣物外套,下方可以放置家居拖鞋,非常方便。

不做吊顶让客厅看起来也更简洁宽敞一些。侧面靠窗的位置,设置了一个小小的休闲阅读区,不仅可以在这里看书还能看风景。棕色的皮质沙发、金属质感的落地灯等等,中古电视柜,营造出复古文艺氛围,非常有格调。

客餐厅位于同一空间内,共用一面蓝色墙,增强区域的连续和统一;客厅地面铺了地毯,又形成了二者的区分。

主卧入口和电视墙在同一平面,为了增大空间感,做了隐形门和造型墙。

利用客厅长度辟出了一块玄关区域,黑色餐桌椅沿墙摆放,与蓝色墙漆、黑色长虹玻璃隔断组成了一处工业复古风的就餐空间。

三盏水磨石+黄铜材质的吊灯,传递出精致优雅的气质,与搁板上的黄铜摆件形成呼应,满满的都是业主想要的复古风。

厨房空间有限,冰箱放在玄关卡座旁边,旁边的弧形隐形门通往次卧。

次卧兼书房

次卧暂时是书房,选择的是壁床,,收起来即可提供宽敞的活动空间。偶尔有客人来拉下来即可用于休憩,将来有了孩子,这里用作儿童房也很合适。
主卧
主卧色系以白色为主,并融入了深红、墨绿等小面积色块,延续复古主题。

主卧门洞向客厅方向挪动后,换来了更大的储物空间,设置了一组容量超大的顶天立地衣柜。

卫浴

将洗手台外置,小小的卫生间实现了干湿分离,长虹玻璃隔断不影响采光,同时保障私密性。

洗手间内部采用了仿水磨石的地砖,放了洗衣机和烘干机。壁挂式马桶更显简洁,上方台面可顺势用来收纳。

厨房
仿红砖的半墙、复古红的小电器,与上半部分的绿色半墙形成撞色,整个厨房采用了大量复古元素。

另一侧做了吧台,摆上美美的Smeg小家电,可以实现一定的西厨功能。

翻新前后对比,差距实在是太大了。房子虽然只有54㎡,却改出了80㎡的感觉。
旧房翻新,就找家先生!
全国连锁品牌,完善的服务体系,信誉好,消费0风险;
严选认证工匠,高于行业标准的旧房3.0工艺,打造高品质工程;
装修资金100%第三方安全托管,节点验收通过后逐项放款给门店;
7大免费装修保障,5分钟售后响应,快速维权100%解决,花生保障让用户掌握装修主动权。


Copyright © 2015-2020 福建家先生互联网服务有限公司 版权所有 闽ICP备16015484号-1