总部
[切换]
关于我们
|
联系我们
4001106162
旧房翻新
卫生间改造
儿童房
厨房翻新
老房翻新
墙面刷新
装修活动
网站首页
公司动态
翻新效果图
全屋翻新
新房装修
厨房翻新
卫生间翻新
墙面刷新
儿童房改造
客餐厅翻新
卧室翻新
书房翻新
阳台改造
办公室改造
酒店翻新
店面改造
优惠活动
翻新知识
合作品牌
关于我们
公司简介
企业文化
公司荣誉
快速报价
您的位置:
主页
>
翻新效果图
>
新房装修
>
全屋翻新
新房装修
厨房翻新
卫生间翻新
墙面刷新
儿童房改造
客餐厅翻新
卧室翻新
书房翻新
阳台改造
办公室改造
酒店翻新
店面改造
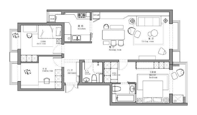
105㎡现代简约风格三居室装修案例效果图
责任编辑:小生
发布日期:2021-05-09 11:09
105㎡现代简约风格三居室装修案例效果图
上一篇:
80㎡现代简约两居室装修案例效果图
下一篇:
105㎡现代北欧风三居室装修案例效果图
查看更多 >>
推荐知识
旧房改造装修质检的时候都应该注意哪些
旧房改造复合木地板应该怎么铺好
旧房翻新水电检测如何做?
旧房翻新家具如何布置方便卫生清洁
Copyright © 2015-2020 福建家先生互联网服务有限公司 版权所有
闽ICP备16015484号-1
免费报价
4001106162
关注我们
返回顶部