总部
[切换]
关于我们
|
联系我们
4001106162
旧房翻新
卫生间改造
厨房翻新
儿童房
老房翻新
墙面刷新
装修活动
网站首页
公司动态
翻新效果图
全屋翻新
新房装修
厨房翻新
卫生间翻新
墙面刷新
儿童房改造
客餐厅翻新
卧室翻新
书房翻新
阳台改造
办公室改造
酒店翻新
店面改造
优惠活动
翻新知识
连锁门店
东部地区
中部地区
西部地区
东北地区
合作品牌
关于我们
公司简介
企业文化
公司荣誉
快速报价
花生保障
您的位置:
主页
>
翻新效果图
>
新房装修
>
全屋翻新
新房装修
厨房翻新
卫生间翻新
墙面刷新
儿童房改造
客餐厅翻新
卧室翻新
书房翻新
阳台改造
办公室改造
酒店翻新
店面改造
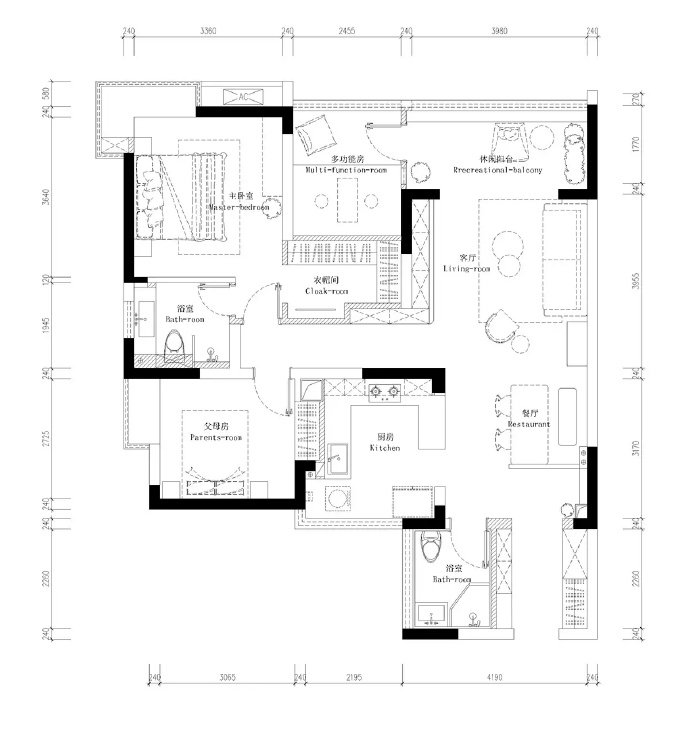
105㎡北欧日式混搭风装修案例效果图
责任编辑:小生
发布日期:2020-10-21 17:20
105㎡北欧日式混搭风装修案例效果图。
上一篇:
45㎡现代极简小公寓装修设计效果图
下一篇:
颠覆传统!89㎡现代美式,时尚、轻奢,有质感!
查看更多 >>
推荐知识
二手房装修后室内怎么养绿植
旧房改造时家装用什么板材比较好
旧房翻新选材小窍门有哪些
谁买谁后悔!你被这些“网红家居”坑过
Copyright © 2015-2020 福建家先生互联网服务有限公司 版权所有
闽ICP备16015484号-1
在线咨询
免费报价
4001106162
关注我们
返回顶部